Pentadesk provides Solar PV Design and Permitting Services in compliance with the local AHJs and as per the NEC regulations. Our complete drafting, design and engineering services enables us to create full submittal drawings that helps in expediting the permitting process.
Pentadesk helps in streamlining the permitting process, so that Solar PV installers can focus on growing their business in their main domain area rather than investing and maintaining an in-house design team for creating permit drawings. Our off-shore development center helps in cost reduction and provides an unmatched cost advantage.
Solar Permit Drawing
- Residential permit drawings
- Commercial permit drawings
What is in the Permit Package:
- Site plan with panel and equipment layout
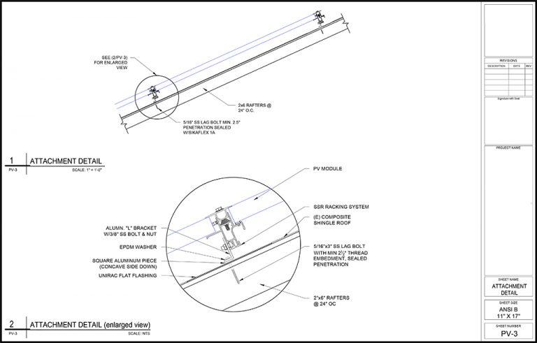
- Roof structure & module location drawing
- Attachment drawings
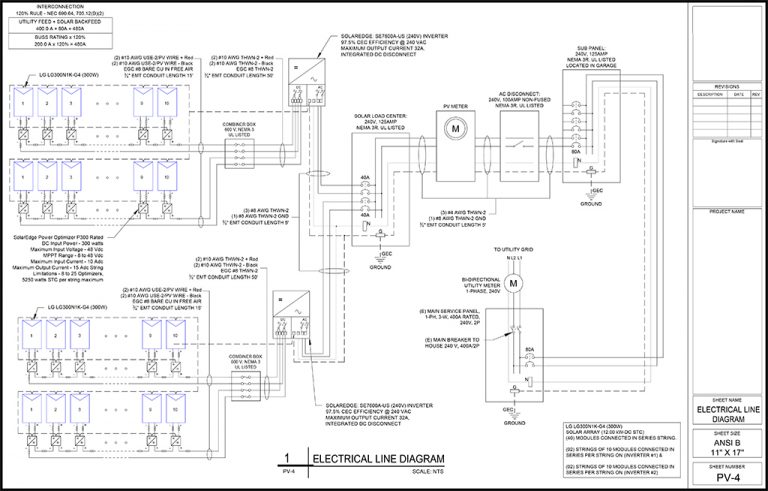
- Electrical drawing with wire and conduit sizing
- System Voltage and Amperage calculations
- Labeling instructions
- Equipment Data Sheets
Preliminary Site Plan
- Residential site plans
- Commercial site plans
Solar Sales Report
- Solar Feasibility Report
- Solar Sales Report
Why Choose Us
As a top solar PV permit drawing service provider, Pentadesk works with some of the most well-known solar installers in the world, providing solar permit drawings and drafting services. At Pentadesk, we are familiar with your jurisdiction’s rules, regulations, and permit criteria. We have mastered the art of supplying PV Permit Drawings to our clients with 100% accuracy.
Here’s why we are the best Solar PV Permit Drawing Service provider:
Best Quality: We ensure all our solar PV permit drawings and solar site plans are compliant with the agreed SLA.
Budget-Friendly: Clients have saved a significant amount of money by hiring Pentadesk. We constantly improve and try to automate the drafting process and pass the savings on to our customers.
On Delivery: Our teams work around the clock to ensure that you receive your order as per the deadline. This saves you time and gives you the competitive advantage of having the shortest turnaround time among your competitors.
Emphasis on Key Operations: At Pentadesk, we take care of the tedious tasks so you can focus on growing your company. We work seamlessly with your in-house design teams to produce designs that meet your needs perfectly.
Flexible Resource Allocation: We greatly reduce the time between recruiting and implementation, thanks to our in-house training facility and process automation.
Ready to Deliver Plans: For priority projects, permit-ready PV plan sets can be delivered in as little as one business day.
Better Understanding of Rules: We have an excellent understanding of jurisdiction requirements, standards, and building codes. Solar design and drafting necessitate fire setback measurements and other AHJ requirements, which we are familiar with and adhere to in accordance with your state’s regulations.













